0

A Vendre - Jolie 2 pièces de 25.83m2 - Boulogne Billancourt - 228 000€ FAI

Boulogne-Billancourt (92100)
Réf : 25RDD228KE

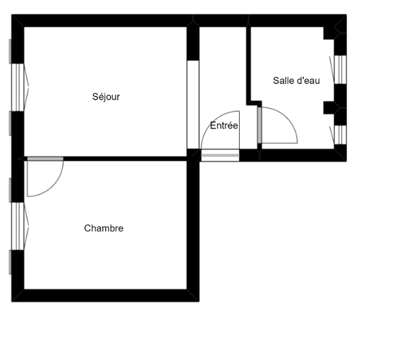
L'agence Longchamp Immobilier vous propose de venir visiter en exclusivité un jolie 2 pièces de 25.83m2 carrez situé au 2eme étage avec ascenseur d’un immeuble sécurisé construit en 1930 situé à la rue du dôme.

Le bien se compose : entrée, séjour lumineux avec parquet de 10m2, kitchenette équipée (four combiné, hotte, frigo Top, plaques vitrocéramiques…), 1 chambre avec placard de 9.26m2, salle d’eau avec wc. Chauffage et eau chaude individuel. Une cave complète le bien. A seulement 7 minutes à pied du métro Marcel Sembat

Idéal premier achat ou investissement locatif (bien anciennement loué 980e/mois pour information).

Prix : 228 000€ FAI (les honoraires sont à la charge du vendeur)

Prix du bien
Pièce(s) 2
Chambre(s) 1

Caractéristiques du bien

Caractéristiques Valeurs
Code postal 92100
Surface habitable (m²) 26 m²
Surface loi Carrez (m²) 25,83 m²
Nombre de chambre(s) 1
Nombre de pièces 2
Etage 2
Ascenseur OUI
Nb de salle d'eau 1
Mode de chauffage Electrique
Type de chauffage Radiateur
Format de chauffage Individuel
Cave OUI
Surface cave (m²) 4
Année de construction 1930

Infos financières

Caractéristiques Valeurs
Charges 114 €
Taxe foncière annuelle 310 €
Ces biens peuvent vous intéresser